Sunfair Professional Office Building

For Lease

101 S 3rd St, Yakima, WA 98901

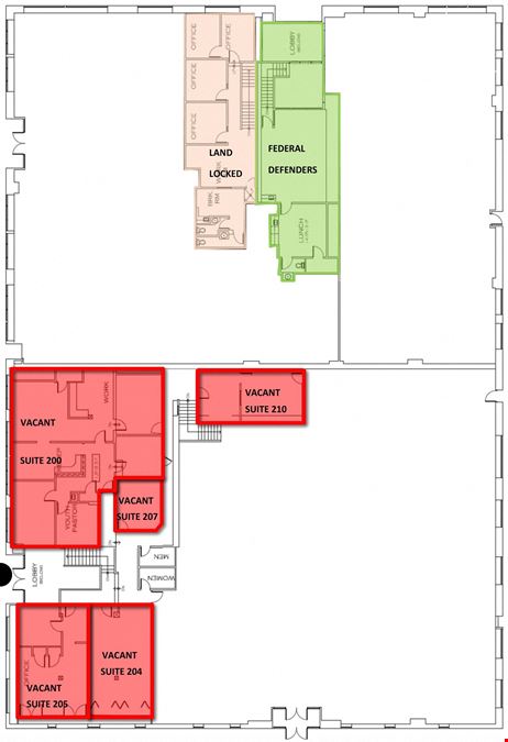
The total number of office spaces available at Sunfair Professional Office Building is 7. Leasing opportunities in the building include general office. There is a total of 16,368 square feet of space currently available for rent at this address. Of this, the minimum divisible area is 678 square feet.

Space Available For Lease 7

Contacts

Chris Sentz

Almon Commercial Real Estate

Property Details

  • Property Type Office - General Office
  • Property Size 34,473 SF
  • Units 15
  • Lot Size 1.1 Acre
  • Building Class B
  • Year Built 1980
  • Date Updated May 19, 2026
THIS OFFERING is situated in the heart of downtown Yakima, WA, a commercial office building located at 101 - 111 South 3rd Street presents a rare leasing opportunity in a prime business district. With its classic architectural design and excellent visibility, the property offers both character and functionality. Currently, there are eight vacancies available, catering to a wide range of business needs with suite sizes ranging from 537 square feet to 6,808 square feet. Whether for startups seeking a compact office or established firms in need of a larger footprint, the building provides flexible leasing options in a professional setting. The property benefits from its strategic location within walking distance of local restaurants, retail shops, government buildings, and other key downtown amenities. Tenants enjoy convenient access to major thoroughfares and public transportation, making it ideal for clients and employees. With modern infrastructure, local management, and a well-maintained environment, 101 - 111 South 3rd Street stands out as a premier destination for businesses seeking visibility, convenience, and adaptability in the Yakima commercial office market.THIS OFFERING is situated in the heart of downtown Yakima, WA, a commercial office building located at 101 - 111 South 3rd Street presents a rare leasing opportunity in a prime business district. With its classic architectural design and excellent visibility, the property offers both character and functionality. Currently, there are eight vacancies available, catering to a wide range of business needs with suite sizes ranging from 537 square feet to 6,808 square feet. Whether for startups seeking a compact office or established firms in need of a larger footprint, the building provides flexible leasing options in a professional setting. The property benefits from its strategic location within walking distance of local restaurants, retail shops, government buildings, and other key downtown amenities. Tenants enjoy convenient access to major thoroughfares and public transportation, making it ideal for clients and employees. With modern infrastructure, local management, and a well-maintained environment, 101 - 111 South 3rd Street stands out as a premier destination for businesses seeking visibility, convenience, and adaptability in the Yakima commercial office market.
Want more info on this listing?

Reach out to the broker for more info on lease terms and amenities

Highlights

  • 24-hour video surveillance
  • Class B building in a Class A location
  • Dedicated parking (58 stalls) along with street parking provide for abundant parking opportunities
  • Extensive range of different size office spaces available
  • Recently updated entry and common areas throughout the building
  • Situated in walking distance to Yakima’s most sought-after downtown amenities

Attachments

Getting around

  • 89/100

    Walk Score ®

  • 34/100

    Transit Score ®

  • 63/100

    Bike Score ®

Powered by Walk Score ®

Location

  • City Yakima, WA
  • Neighborhood Yakima
  • Zip Code 98901
  • Market Tri Cities

Points of Interest

  • Arco

    0.27 miles

  • 7-Eleven

    0.43 miles

  • Conoco

    0.44 miles

  • Safeway Fuel Station

    0.77 miles

  • Electrify America

    1.07 miles

  • 76

    1.63 miles

  • Chevron

    1.67 miles

  • ChargePoint

    4.86 miles

  • North Lot

    0.98 miles

  • Gold Lot

    1.08 miles

  • Carnival

    1.09 miles

  • Lot E

    1.52 miles

  • Lot P

    1.52 miles

  • Lot O

    1.53 miles

  • Lot A

    1.59 miles

  • Lot H - Student Parking

    1.60 miles

  • Lot F

    1.61 miles

  • Lot L

    1.63 miles

  • Hotel Maison Yakima Tapestry Collection by Hilton

    0.15 miles

  • Hilton Garden Inn Yakima

    0.16 miles

  • Red Lion Hotel Yakima Center

    0.36 miles

  • Holiday Inn

    0.39 miles

  • Howard Johnson Plaza Yakima/Near Convention Center

    0.48 miles

  • Guesthouse Inn

    0.58 miles

  • Holiday Inn Express Yakima

    0.59 miles

  • Red Apple Motel

    0.60 miles

  • Holiday Lodge

    0.66 miles

  • Fairfield Inn & Suites Yakima

    0.70 miles

  • Downtown Market

    0.09 miles

  • Target

    0.65 miles

  • Big Lots

    0.66 miles

  • Mercado de Yakima

    0.67 miles

  • Safeway

    0.68 miles

  • Walmart Supercenter

    1.02 miles

  • Fiesta Foods

    1.39 miles

  • Grocery Outlet

    2.07 miles

  • JCPenney

    2.45 miles

  • Ross

    2.45 miles

101 S 3rd St Listing Brief

  • Leasing rates here can depend on a variety of factors, including the quality rating of the property (property class or building class), the position of the available space within the building, any unique attributes that the listed space may include, as well as on the availability of on-site or nearby amenities. Reach out using the contact form available on this page to schedule a tour or to get more detailed information on the most modern facilities and amenities that 101 S 3rd St has to offer.

  • See the listing area details for information and ratings regarding the degree of walkability in the neighborhood, the accessibility and frequency of public transit options, as well as the level of availability and quality of biking infrastructure in the area. What’s more, you can use the interactive map for a good overview of the area. Location details also include a breakdown of distance from the property to several essential amenities and points of interest, which may include parking facilities, fuel stations, stores, or hotels.

  • This property is in the Yakima neighborhood of Yakima and located within zip code 98901.

    101 S 3rd St was originally completed in 1980 and is rated class B. The building includes 34,473 square feet, of which 16,368 square feet is rentable office space.

Contact Listing Broker
Chris Sentz

Almon Commercial Real Estate

  1. 1Main information
  2. 2Extra information
This site is protected by reCAPTCHA and the Google Privacy Policy and Terms of Service apply.