Airport Corporate Center

For Lease

1801 Penn Street, Melbourne, FL 32901

Airport Corporate Center currently offers 2 industrial space(s) for rent. The property type is designated as industrial. Use types among leasing opportunities at this property include r&d - industrial and flex - industrial. The minimum space size listed is 3,292 square feet. Lease type options include NNN. Expand the individual listing section(s) below or reach out to the property representative(s) for additional information on leasing opportunities at Airport Corporate Center.

Space Available For Lease 2

Contacts

Michael S. Ullian

Ullian Realty

Property Details

  • Property Type Industrial - Flex - Industrial
  • Property Size 36,188 SF
  • Lot Size 3.92 Acre
  • Year Built 1988
  • Date Updated Apr 25, 2026
  • HVAC None
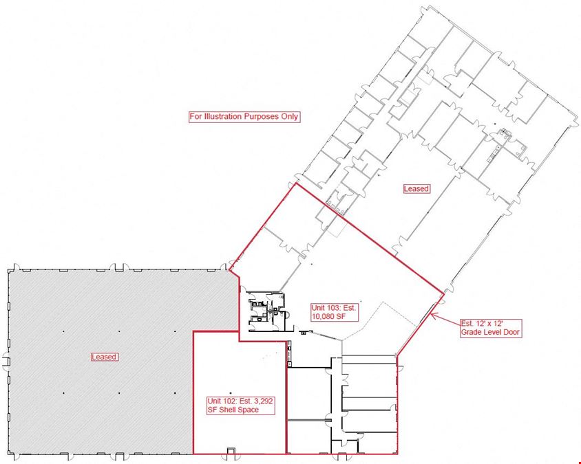
Located in the heart of Melbourne approximately halfway between Nasa Boulevard & Hibiscus Boulevard. Easily accessible via nearby Interstate 95, US Highway 1, and US 192. Close proximity to the Melbourne International Airport, L3Harris, Northrop Grumman, and all of the other High-Tech, Engineering, and R&D employers in the area. Make this the future home for your business today!• Unit 102: 3,292 SF Shell Space. Dimensions 50’ x 66’ +/-. Est. 16’ Clear Height • Concrete Flooring and Exposed Ceiling Throughout. • Unit 103: Est. 5,580 SF Office/Storage/Training Rooms + 4,500 SF Warehouse = 10,080 SF • 100% HVAC & Fire Sprinklered. Compressed Air Lines • Warehouse Concrete Flooring and est. 14’ Drop Ceiling Throughout • One 12’ x 12’ +/- Grade Level Door • Units can be Leased Individually or Combined for 13,372 SF • City of Melbourne Water/Sewer, FPL Electric • 108 Common Parking Spaces. Potential for Additional Parking (Call for Details) • Est. $5.15 PSF OPEX
Want more info on this listing?

Reach out to the broker for more info on lease terms and amenities

Attachments

Getting around

  • 30/100

    Walk Score ®

  • 40/100

    Bike Score ®

Powered by Walk Score ®

Location

  • City Melbourne, FL
  • Zip Code 32901
  • Market Orlando

Points of Interest

  • Marathon

    1.29 miles

  • Wawa

    1.52 miles

  • 7-Eleven

    1.62 miles

  • Cumberland Farms

    1.65 miles

  • BP

    1.96 miles

  • Chevron

    2.21 miles

  • Shell

    2.41 miles

  • Murphy USA

    2.70 miles

  • Sam's Club Gas

    2.75 miles

  • Tesla Supercharger

    3.61 miles

  • Alamo

    1.34 miles

  • Enterprise

    1.35 miles

  • National

    1.35 miles

  • Budget

    1.35 miles

  • Dirty Dog's Car Wash

    1.89 miles

  • Florida Car Wash

    2.68 miles

  • Bill's Car Wash

    3.61 miles

  • Hurricane II Car Wash

    3.90 miles

  • Best Car Wash Express

    4.15 miles

  • Hemingway's Tavern

    0.11 miles

  • Pane E Vino Italian Restaurant

    0.13 miles

  • El Chico's

    0.39 miles

  • Red Ginger

    0.40 miles

  • Chick-fil-A

    0.45 miles

  • First Watch

    0.59 miles

  • BJ's

    0.59 miles

  • TGI Friday's

    0.62 miles

  • Outback Steakhouse

    0.63 miles

  • Burger King

    0.65 miles

1801 Penn Street Listing Brief

  • The rental rate for available space here starts at $$12.95/SF/YR. The asking price for this type of property can vary based on the location of the asset, as proximity to transportation hubs, access to highways or ports plays a key role in the building's valuation. Other factors that influence cost are the property age, its quality rating (building class or property class), as well as its on-site facilities and features.

  • Completed in 1988, the property at 1801 Penn Street incorporates 36,188 square feet.

    A single-tenant industrial space is typically ideal for businesses or organizations that require exclusive and dedicated use of the entire facility. This type of space suits industries or activities that demand specialized infrastructure, privacy, and control over the entire premises.

    Multi-tenant space is ideal for businesses that need smaller spaces or that want to share the property with other businesses. The property has a variety of smaller units available, ranging in size from 3,292 to 10,080 square feet.

  • Reach out to listing brokers or property representatives using the contact form available on this page, to find out more about climate control and other essential systems at this property. Climate control is typically used in industrial buildings where businesses store items that are susceptible to temperature and humidity damage, such as food, pharmaceuticals, paper, textiles, and electronics.

Contact Listing Broker
Michael S. Ullian

Ullian Realty

  1. 1Main information
  2. 2Extra information
This site is protected by reCAPTCHA and the Google Privacy Policy and Terms of Service apply.